string(4) "1083"

Циклон ЦБ-42 в Саратове

Версия
для печати
В наличии на складе Цена в рублях с НДС 1 020 000
Получите скидку
у менеджера
Цена на циклон ЦБ-42 с доставкой от 1 020 000 рублей с НДС
ПрименяемостьКотел ДКВр-6,5-13; КЕ-6,5-14С-О; КЕ-6,5-14МТ-О
Производительность циклона, м³/ч18000-30000
Доставка ТК в г. Саратов и по России
Безналичный расчет
Опросный лист
Опросный лист
  • Технические
    характеристики
  • Описание
    товара
  • Отзывы о
    продукции
  • Видео
    обзор

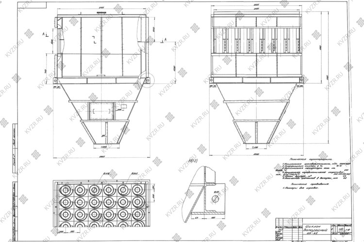
Технические характеристики циклона ЦБ-42

Масса, кг 3113
Количество элементов, шт 42
Внутренний диаметр циклонного элемента, мм 245
Степень очистки газов, % 80
Допустимая температура газов на входе до, °С 300
Марка ЦБ 42
Вид Циклон ЦБ
Запыленность входных газов, г/ м³ 600
Применяемость Котел ДКВр-6,5-13; КЕ-6,5-14С-О; КЕ-6,5-14МТ-О
Габаритные размеры: длина*ширина*высота, мм 2355*2300*3180
Тип циклона Батарейный, Циклон ЦБ
Бренд KVZR
Производительность циклона, м³/ч от 18000 до 30000

Циклон ЦБ-42 в Саратове

Батарейные циклоны ЦБ 42 предназначены для очистки запылённых газов или воздуха от твёрдых частиц неслипающейся пыли или золы с размерами частиц более 5 мкм и применяются для улавливания:

  • золы в промышленных котельных и на тепловых электростанциях;
  • угольной пыли в сушильных установках обогатительных и брикетных фабрик и системах промышленной вентиляции;
  • неслипающейся пыли в различных отраслях хозяйства.

Конструкция циклонов ЦБ-42

Циклоны батарейные ЦБ-42 представляют собой сварной корпус, в котором установлены ряды параллельно расположенных циклонных элементов с полуулиточным вводом газов в них.

Циклоны батарейные ЦБ-42 делится на три части: верхняя камера очищенных газов, средняя камера запылённых газов, нижняя - бункер сбора пыли.

Циклонные элементы состоят из полых цилиндрических корпусов с конусной частью внизу и входными патрубками с аппаратами закручивания (полуулитками). Внутри элементов вертикально установлены выхлопные патрубки. Циклонные элементы в циклоне ЦБ устанавливаются ступенчато по ходу движения газов так, что входные патрубки циклонных элементов последующего ряда располагаются ниже предыдущего. Нижние крышки входных патрубков последнего по ходу газа ряда циклонных элементов являются частью нижней трубной доски, что обеспечивает вынос пыли, осевшей на нижней трубной доске. На верхней крышке циклона установлен взрывной клапан.

Циклон ЦБ-42 опирается на опорный пояс.

Циклон ЦБ-42 поставляется единым транспортабельным блоком.

Принцип работы циклонов ЦБ-42

Дымовой газ поступает во входное окно циклона ЦБ-42 и засасывается во входные патрубки циклонных элементов. Под действием гравитационных и центробежных сил из потока запылённого газа сепарируются частицы золы, которые осаждаются в бункере-накопителе. Зола периодически удаляется через шибер или другие устройства для выгрузки. Очищенный газ отводится из циклона через выходное окно.

Купить циклон ЦБ-42

Для того чтобы купить циклон ЦБ-42 в Саратове, вы можете сделать заявку в отдел сбыта по телефону (38-52) 29-97-41 (42), либо оформить заказ онлайн. Наши менеджеры дадут консультацию и рассчитают стоимость доставки до вашего региона и населенного пункта.

Дополнительные услуги

Сертификат и качество циклона ЦБ-42

Циклоны и золоуловители производства Котельный завод "РЭП" соответствуют строгим стандартам качества и безопасности.

Циклоны имеют декларацию соответствия Техническим регламентам Таможенного союза ТР ТС 010/2011 «О безопасности машин и оборудования».

Промышленный циклон ЦБ-42 включен в реестр российских производителей промышленного оборудования Минпромторг и имеют реестровую запись номер № 10729654 от 14.10.2025, сроком действия до 13.10.2028 подтверждающую российское происхождение продукции.

Промышленный циклон ЦБ-42 имеет гарантийный срок 24 месяца и срок работы при соблюдении правил монтажа и эксплуатации оборудования 10 лет.

Отзывы о продукции

Отзыва о товаре пока нет, будьте первыми!

Циклоны являются наиболее распространенным газоочистным оборудованием. Циклон производит очистку газов в самых различных отраслях промышленности: в черной и цветной металлургии, химической и нефтяной промышленности, промышленности строительных материалов, энергетике и других. При небольших капитальных затратах и эксплуатационных расходах, циклоны в зависимости от характеристик улавливаемой пыли, типа и режима работы обеспечивают эффективность очистки газов и пылеулавливания 80-95 %.

Смотреть видеообзор на

Вопрос-ответ

  • Технические
    характеристики
  • Описание
    товара
  • Отзывы о
    продукции
  • Видео
    обзор
Документы завода
  • Сертификаты завода
  • Членство в СРО
  • Аттестованная технология сварки
  • Патенты на котельное оборудование
  • Товарные знаки
Смотреть все документы
Сертификат на водогрейные котлы на твердом и жидком топливе
Сертификат на водогрейные котлы на газе и жидком топливе
Сертификат на котлы отопительные паровые КП
Сертификат на топки
Сертификат на щиты управления
Сертификат на скиповые подъемники
Сертификат на золоуловители (циклоны)
Сертификат на конвейеры скребковые
Сертификат на дробилки
Сертификат на клапаны предохранительные
Сертификат на бункер-накопитель механизированный
Сертификат на автоматику газовых горелок
Сертификат о происхождении товара форма СТ-1
Членство в СРО
Членство в СРО
Аттестованная технология сварки
Свидетельство аттестованной технологии сварки
Патент на отопительный котел
Патент на водогрейный котел
Патент на топку водогрейного котла
Патент на водогрейный газовый котел
Патент на водогрейный котел
Патент на топочное устройство твердотопливного котла
Патент на водогрейный котел
HEATEXPERT товарный знак
KVZR товарный знак
STEAMEXPERT товарный знак
Другая похожая продукция
Батарейный циклон БЦ 2
Производительность циклона, м³/с8.77-10.15
ПрименяемостьКотлы мощностью 8 - 9.5 МВт, котлы паропроизводительностью 12 т/ч
1 697 000 р. Цена с НДС
Батарейный циклон БЦ 259
Производительность циклона, м³/с3.69
ПрименяемостьПаропроизводительность 4.0 т/ч
Цена по запросу
Циклон ЦН-15-2-УП
Производительность циклона, м³/ч1270-2035
72 000 р. Цена с НДС
Циклон ЦБ
ПрименяемостьКотел ДКВр-2,5-13; КЕ-2,5-14СО; УСШ 2,5 -14
Производительность циклона, м³/ч6500-11000
436 000 р. Цена с НДС
Вы просматривали эти товары
Циклон ЦБ
ПрименяемостьКотел ДКВр-6,5-13; КЕ-6,5-14С-О; КЕ-6,5-14МТ-О
Производительность циклона, м³/ч18000-30000
1 020 000 р. Цена с НДС
Котел 1860 кВт твердотопливный
Лизинг
Вид топкиРучная, Колосники
Максимальная тепловая мощность, кВт1860
ТопливоТвердое, Уголь
Отапливаемая площадь, м²15700-20400
989 000 р. Цена с НДС
Дизельный котел отопления
Лизинг
Вид топкиДизельная горелка
Максимальная тепловая мощность, МВт1.6
ТопливоДизель, Жидкое
Отапливаемая площадь, м²13300-17600
809 000 р. Цена с НДС
Котел 0.35 МВт дизельный
Вид топкиДизельная горелка
Максимальная тепловая мощность, МВт0.35
ТопливоДизель, Жидкое
Отапливаемая площадь, м²2600-3900
345 000 р. Цена с НДС
background